News Flash Home
The original item was published from 9/5/2019 2:52:44 PM to 9/16/2019 8:30:11 PM.

News Flash

County News

Posted on: September 5, 2019

[ARCHIVED] 1423 West Ruritan Rd Rezoning Community Meeting (Crunk Engineering – Lewis Gale Medical Center)

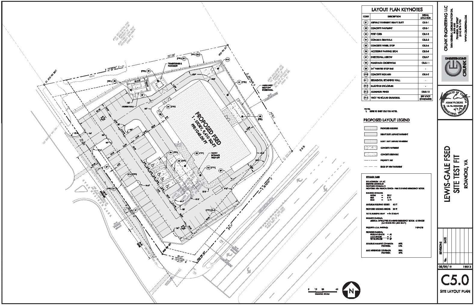
Free Standing Emergency Room Site Plan

A land use application has been filed with the Roanoke County Department of Community Development by Crunk Engineering – Lewis Gale Medical Center. The request is to rezone approximately 1.44 acres from R-1, Low Density Residential District to C-1, Low Intensity Commercial District for a medial office – free standing emergency room located at 1423 West Ruritan Road in the Hollins Magisterial District. A community meeting regarding this request will be held as follows: Monday, September 16, 2019 at 6:30 PM in the Bonsack Elementary School Cafeteria (5437 Crumpacker Drive, Roanoke VA 24019).

The community meeting is sponsored by the applicant for consideration of its application. The community meeting does not signify support for, endorsement of, or judge the merits of this application by Roanoke County.

Please note that in addition to the community meeting, this petition is scheduled for a public hearing before the Planning Commission on Tuesday, October 1, 2019, at 7:00 p.m., in the Board Meeting Room at the Roanoke County Administration Center, 5204 Bernard Drive. In addition, the petition is scheduled for a public hearing before the Board of Supervisors on Tuesday, October 22, 2019, at 7:00 p.m., in the Board Meeting Room at the Roanoke County Administration Center, 5204 Bernard Drive.

The application is available for public review in the Department of Community Development or online at http://roanokecountyva.gov/pc. If you have any questions please call Rebecca James at (540) 772-2134 or email at rjames@roanokecountyva.gov

1423 West Ruritan Road Location Map

Additional Info...
Facebook Twitter Email

Other News in County News

FEMA Flood Maps Logo

New FEMA Flood Maps Are Coming! Review and Comment By Feb. 13

Posted on: January 16, 2026 | Last Modified on: January 16, 2026
MLK Day 2026

Roanoke County Offices Closed Monday, January 19

Posted on: January 14, 2026 | Last Modified on: January 14, 2026
Maps and Apps NewsFlash

Start the New Year with New GIS Services!

Posted on: December 22, 2025
Spotlight RoCo Mobile

RoCo Mobile App Now Available!

Posted on: January 6, 2021
SpotlightRoCoAlert

Sign-up Your Cell Phone for RoCo Alert Notifications

Posted on: January 27, 2022 | Last Modified on: September 8, 2025
  1. Where Mountains Meet Adventure.

  1. Roanoke County Virginia Homepage

Contact Us

  1. Roanoke County, Virginia

    P.O. Box 29800
    Roanoke, VA 24018-0798
    Phone: 540-772-2006
    Staff Directory

  1. Virginias Blue Ridge Homepage

Government Websites by CivicPlus®
Arrow Left Arrow Right
Slideshow Left Arrow Slideshow Right Arrow